OUR LEVELS OF SERVICE
Our interior design services are flexible to your needs.

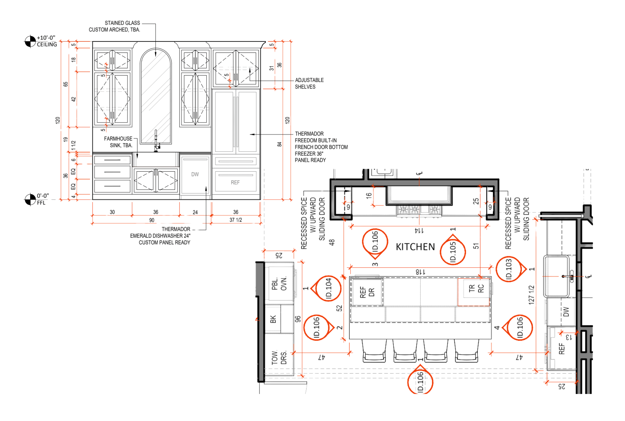
Full-Service Interior Design
We work closely with you to design every detail of your space, from selecting furniture, colors, and materials to drafting plans, layouts, and elevations. You'll receive construction documents and plans as the final deliverable.

Design Refresh
Our design refresh is perfect for those looking to revitalize their space without construction. It focuses solely on cosmetic upgrades, such as rearranging layouts and selecting new paint colors and furniture.

Hourly Design Consulting
Expert guidance is available through our flexible hourly design consulting service, perfect for clients needing assistance with specific selections, targeted advice, or general design counseling.
WHAT'S INCLUDED?
Our Interior Design Team

Nathalia Garrigan
Principal Designer & Owner

Michele Howell
Senior Designer & Stylist

Caylah Jago
Junior Designer

Cristine Eduarte
Drafter
